Maison unifamiliale
Découvrez cette maison contemporaine aux lignes épurées, pensée pour offrir confort, luminosité et fonctionnalité. Implantée sur une belle parcelle avec jardin et terrasse, elle séduit par ses volumes généreux, ses espaces parfaitement agencés et son architecture moderne. Ce projet combine prestations de qualité, finitions soignées et une distribution idéale pour une vie de famille agréable.


Espaces de vie
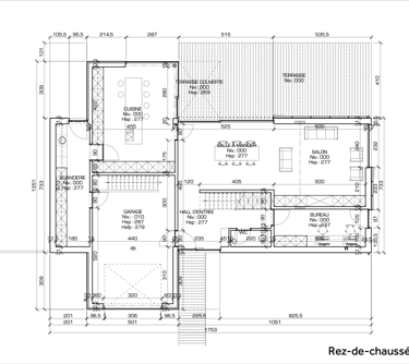
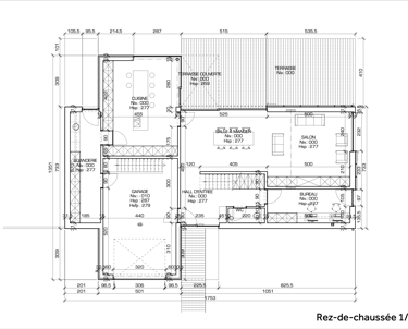
Le rez-de-chaussée s’organise autour d’un vaste salon–salle à manger de plus de 50 m², offrant une excellente luminosité grâce aux larges baies vitrées donnant accès direct à la terrasse et au jardin. La cuisine ouverte, moderne et parfaitement équipée, s’intègre harmonieusement à l’espace de vie et invite à la convivialité. Un bureau complète ce niveau, idéal pour le télétravail ou une activité professionnelle à domicile.
Espace nuit & annexes
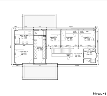
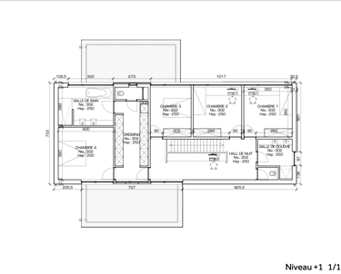
L’étage propose plusieurs chambres aux surfaces généreuses, dont une suite parentale avec dressing et salle de bain, pensées pour le confort et l’intimité de chacun. Des espaces annexes viennent renforcer l’aspect pratique du bien, avec un garage spacieux et un sous-sol comprenant caves et zones techniques, offrant de nombreuses possibilités de rangement ou d’aménagement selon vos besoins.


Plans & informations
Les plans complets de la maison sont disponibles afin de vous permettre de visualiser pleinement les volumes et l’agencement du bien. Pour toute information complémentaire ou pour organiser une visite, n’hésitez pas à nous contacter, nous nous ferons un plaisir de vous accompagner dans votre projet.








Contact
Nous sommes là pour répondre à vos questions.
Téléphone
contact@collardimmo.com
0477 95 07 67
© 2025. All rights reserved.
